원당1구역
본문 바로가기
주메뉴 바로가기
서브메뉴 바로가기
로그인
회원가입
주메뉴
조합소개
조합장 인사말
연혁
조직도
위치
사업개요
건축개요
조감도·배치도
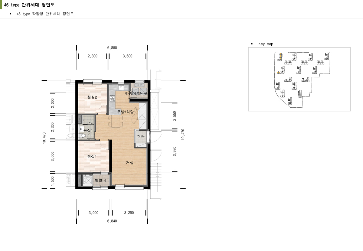
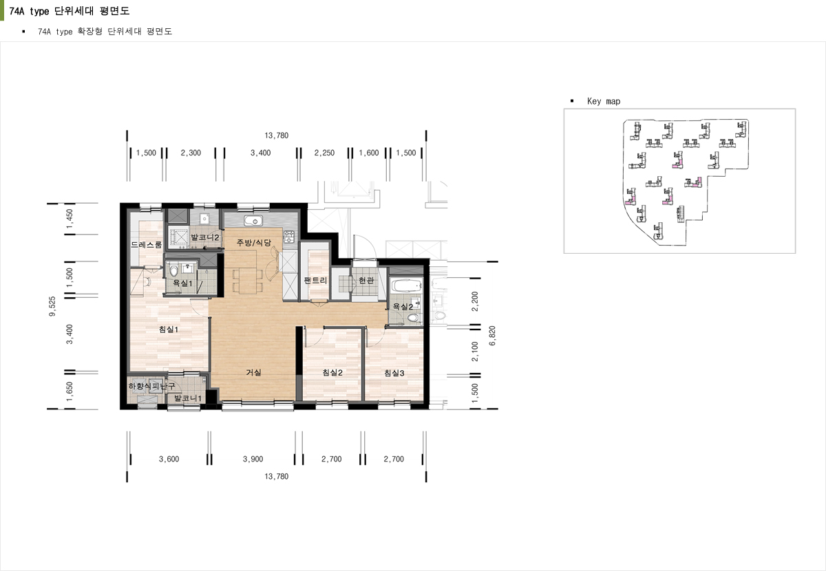
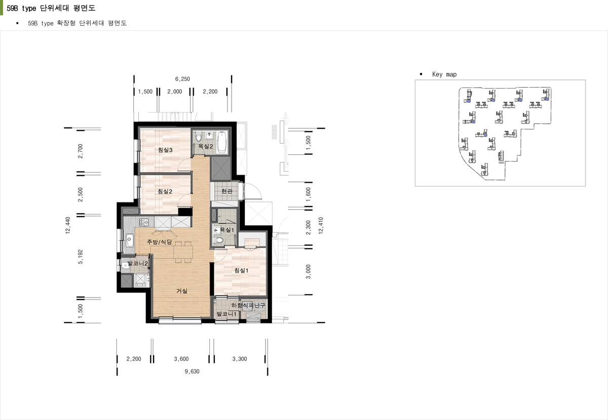
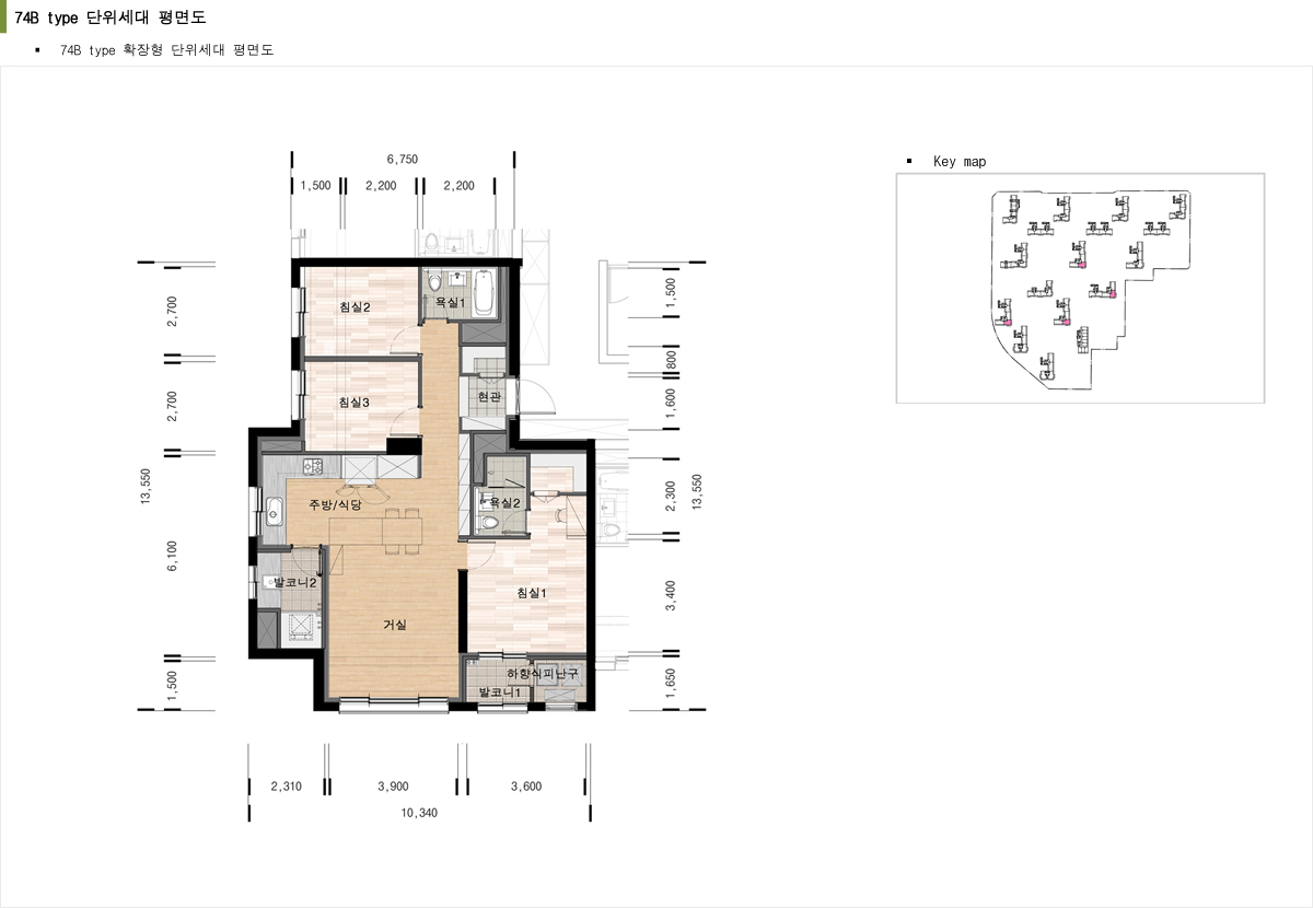
단위세대 평면도
지구현황
정비사업계획
사업시행 계획서
관리처분 계획서
분양/청산
월별 공사 진행 상황
1구역소식
소식지
공문서
공지사항
이사회의
대의원회의
주민총회
회계
계약서
추진위원회
자료실
관련법규
고시·공고
사진방
자유게시판(실명제)
사업개요
더 행복한 주거공간 원당1구역
home
건축개요
조감도·배치도
단위세대 평면도
지구현황
단위세대 평면도